clanak False

Na 25. sjednici Gradske skupštine Grada Zagreba prihvaćeni urbanistički planovi

11.07.2019.
Na 25. sjednici Gradske skupštine Grada Zagreba, 10. i 11. srpnja 2019., na prijedlog Gradonačelnika Grada Zagreba, prihvaćen je Konačni prijedlog odluke o donošenju Urbanističkog plana uređenja Bornina - Erdödyjeva - Branimirova - Domagojeva; Konačni prijedlog odluke o izmjenama i dopunama Odluke o donošenju Urbanističkog plana uređenja Studentski kampus Borongaj te Prijedlog odluke o izradi Urbanističkog plana uređenja Branovečina II.
 
Odluka o donošenju Urbanističkog plana uređenja Bornina – Erdödyjeva – Branimirova - Domagojeva
U kolovozu 2018. godine zaprimljena je inicijativa za izradu urbanističkog Plana uređenja od strane vlasnika neuređenog i neizgrađenog dijela zemljišta u obuhvatu Plana radi omogućavanja izgradnje održivih stambeno-poslovnih građevina visokog standarda u unutrašnjosti bloka. Ciljevi donošenja plana su: zatvaranje uličnog niza građevina na sjevernoj i južnoj strani bloka (uz Borninu i Branimirovu), omogućavanje otvaranja bloka u razini prizemlja kako bi se ostvarila pješačka poveznica kroz blok, omogućavanje izgradnje visokih soliternih građevina u unutrašnjosti bloka (max. visine P+8) koje postižu izgrađenost bez zatvaranja unutrašnjosti bloka, a između građevina potrebno je formirati kontinuitet otvorenih zelenih površina, omogućavanje obnove bivše tvornice "Nada Dimić'' te privođenje novoj namjeni. Stručni izrađivač Plana je Urbanistica d.o.o.
 
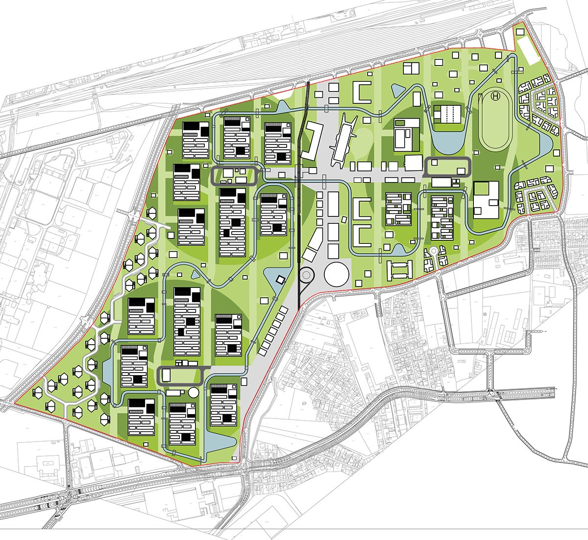
Odluka o izmjenama i dopunama Odluke o donošenju Urbanističkog plana uređenja Studentski kampus Borongaj
U studenom 2018. godine zaprimljena je inicijativa za izmjene i dopune Plana od Sveučilišta u Zagrebu radi nužnog poboljšanja uvjeta rada tamo smještenih fakulteta. Cilj izmjena i dopuna Plana bio je omogućavanje zahvata rekonstrukcije, uz povećanje GBP-a i energetsku obnovu, a radi prilagodbe prostora tijekom prijelaznog razdoblja. Stručni izrađivač izmjena i dopuna Plana je Zavod za prostorno uređenje Grada Zagreba.
 
Odluka o izradi Urbanističkog plana uređenja Branovečina II
U travnju 2019. godine zaprimljena je inicijativa za izradu urbanističkog Plana uređenja od strane vlasnika dijela zemljišta u obuhvatu Plana, gdje se planira izgradnja mješovite namjene na dijelu područja Branovečina. Obveza izrade Plana propisana je člankom 83. GUP-a radi definiranja nove regulacije, izgradnje i uređenja danas neizgrađenog i neuređenog prostora površine cca 30 ha. Područje za koje se izrađuje Plan određeno je GUP-om kao dio niskokonsolidiranoga gradskog područja planiranog za novu regulaciju na neizgrađenom prostoru. Po svom položaju nalazi se na području gradske četvrti Gornja Dubrava, sjeverno od produžene Ulice Rudolfa Kolaka, odnosno naselja Trnovčica. Prostor obuhvata je neizgrađen, a prema sjeveru i sjeveroistoku u kontaktu je s postojećim naseljem Branovečina.

Aktivnosti